Equipamento

Sesc Thermas Presidente Prudente

JPG.ARQ + Monoblock + LABA + Maratá + Oficina2mais Presidente Prudente, Brasil Proposta para Concurso Nacional - Projeto Vencedor Arquitetura: Adrian Albino Russo, Alejandro Laurido, Alexandre Benoit, Alexis Schachter, Angeles Cabanillas, Aylen Sabrina Santander, Christian Almeida Campos do Nascimento, Claudia Jaimovich, Fernando Cynowiec Paez, Gabriel Andreoli Hirata, Ian Fritsche, José Paulo Gouvêa, Jimena Herrera, Juan Granara, Lucas Gabriel Peñaloza, Magni Agustín Mariano Vàsquez, María Ribes Eritja, Matias Agustín Quintela, Mayra Ruggiero, Melissa Andes, Michelle Posternak, Nina Jarach, Valentina Atamañuk e Vanina Batistella Estrutura: Maratá Engenharia Imagens : LABA Arquitectos Paisagismo: Oficina2mais - Carolina Leonelli e Gabriela Tamari

Cidade aberta

Nos parques e jardins das cidades do interior, o sombreado das árvores desenha um espaço imprevisto e acolhedor. Nele transcorrem atividades lúdicas, esportivas, festivas ou de mero ócio e contemplação. Como diz o poeta, “a vida era ali: debaixo das árvores”. Na unidade Sesc Thermas de Presidente Prudente, constrói-se este lugar do encontro, sem pressa e repleto de pequenas alegrias. Assim imaginam-se as atividades distribuídas em um embasamento mineral, livre e poroso, sob uma cobertura regular e modulada que se eleva à altura da copa do arvoredo circundante, compartilhando – edifício e parque – um sombreado comum.

A implantação guia-se por uma intenção de continuidade e fluidez. Se a nova praça d’água está na posição do antigo conjunto aquático, avivando nos frequentadores sua memória afetiva, o edifício proposto, por sua vez, tem uma ocupação compacta, racional e econômica, que busca um equilíbrio entre a topografia natural e o corte e a escavação necessários, minimizando terraplanagens e contenções. Dois platôs acomodam as cotas estruturantes do projeto: térreo do bairro e térreo do parque.  Estes definem os generosos acessos ao conjunto pela avenida Luiz Peretti e pelo encontro das ruas Floreano Borges e Alberto Peters. Cada entrada é assinalada por uma praça com características e escala próprias. A das ruas Borges e Peters se desenha como um largo, uma praça de bairro com árvores frutíferas e a horta comunitária, dando acesso à cota da cidade; já aquela da avenida Luiz Peretti, a principal e maior, conduz por alamedas aos dois platôs e à esplanada de apresentações para onde o teatro se abre.

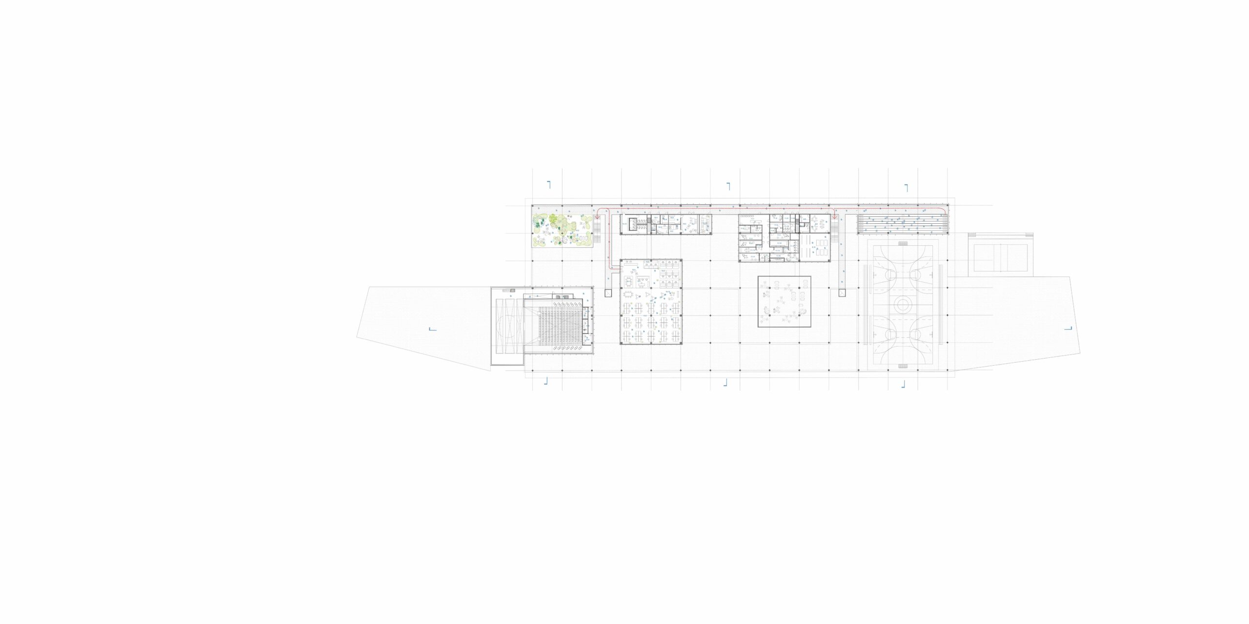
No nível superior, afloram volumes porosos que abrigam os espaços de convivência, a central de atendimento, as salas de múltiplo uso, a loja, os espaços de brincar, as salas de ginástica e as quadras poliesportivas – todos esses programas amparados por sanitários, vestiários, salas técnicas e depósitos. O percurso neste térreo do bairro é livre da monotonia de corredores fechados, constituindo-se como uma sucessão de acontecimentos e trocas – como as unidades do Sesc devem ser. Este pavimento, ao fazer esta mediação da cidade com o parque, lembra as palavras do professor Carlos Lemos sobre a varanda na casa rural paulista: desejável transição do interior da morada para o quintal, o pomar. No avarandado do Sesc Thermas, transcorre a passagem da cidade para a mata; vegetação e paisagem se revelam parte da atmosfera do lugar, definindo a percepção dos espaços. A posição privilegiada das quadras permite, com grandes arquibancadas, receber, além de jogos recreativos, apresentações culturais menores e informais. Seis metros abaixo no térreo do parque, estão os demais programas de uso coletivo com seus respectivos apoios: acesso principal ao teatro (foyer), comedoria, espaço de exposições, biblioteca, o complexo aquático e a praça d’água. Os volumes se expandem para o exterior; tal é o caso da comedoria que abre suas portas, com mesas distribuídas ao ar livre, sendo aí o próprio quintal para as crianças, local de ações imprevistas e convidativas que explorem em termos culturais e educativos a natureza. São fundamentais para este sistema de organização espacial, as conexões verticais entre os dois térreos, seja através de escadas-arquibancadas, dispostas no sentido do desnível do terreno, seja de elevadores de grande porte: o descer e subir como atividade social descompromissada e cotidiana.

Duas cotas intermediárias completam o edifício. O pavimento infraestrutural, entre os dois térreos, abriga espaços de apoio à comedoria, depósitos, almoxarifados, estacionamento – ligados por uma rua técnica. Na cota acima do térreo do bairro, está um pavimento administrativo e de serviços que reúne, em ilhas interligadas por passarelas, além da gerência e o núcleo de tecnologia e informação, outros espaços de coordenação ou de fluxo controlado de pessoas – como odontologia, fisioterapia e acesso à arquibancada. Os volumes apresentam coberturas verdes que configuram locais de descanso para funcionários da unidade ou áreas técnicas.\

O teatro é posicionado no limite oposto à praça d’água, o que permite seu acesso independente, conexão direta com o estacionamento e docas, bem como a dupla abertura de seu palco, para a esplanada e para sua plateia interior, que pode ingressar nele pelos dois térreos. As necessidades técnicas – varas e demais dispositivos cênicos – fazem dele um volume destacado que tem seu caráter simbólico reforçado uma vez que o arremate de sua geometria é feito com um lanternim em policarbonato translúcido, do qual emana uma luz suave e regulável, marco visual e urbanístico na paisagem.