Equipamento

Sesc Galeria

JPG.ARQ + Monoblock + LABA + Maratá São Paulo, Brasil Proposta para Concurso Nacional - Projeto Finalista Arquitetura: Adrian Albino Russo, Alexandre Benoit, Alexis Schachter, Jose Paulo Gouvea, Juan Granara, Marcos Amadeo, Fernando Cynowiec Paez. Arquitetos colaboradores: Agustina Pera, Alejandro Laurido, Aris Angelo Marsanich, Aylen Sabrina Santander, Camila Jalil Cobresi, Christian Almeida Campos do Nascimento, Claudia Jaimovich, Ciro Alejandro Cicuta, Gabriel Andreoli Hirata, Jimena Herrera, Lucas Gabriel Peñaloza, Lucia Canabal Korencan, Magni Agustín Mariano Vàsquez, María Ribes Eritja, Matias Agustín Quintela, Michelle Posternak e Nina Jarach. Estrutura: Maratá Engenharia Patrimônio: Martin Capeluto, María Turull e Pedro Vieira Imagens : LABA @labaarquitectos

Cidade-Galeria

As grandes lojas de departamento, como o Mappin, tiveram seus primórdios na metrópole do XIX. Em sua forma mais singela, essa tipologia não passava de uma estreita rua coberta por uma estrutura de vidro. Bastou isso para que os edifícios lindeiros a ela descortinassem seus térreos como antiquários, cafés e livrarias. Um longo desenvolvimento apagou esse passado, produzindo espaços agigantados e enclausurados, como o shopping-center. A cidade do XXI tende a abrir seus interiores novamente. Atentando-se às múltiplas camadas de uma memória urbana sedimentada, o Sesc Galeria aqui proposto volta-se ao sentido original das galerias, isto é, enquanto passagem, rua-galeria – ideia que está contida também na formação do centro novo de São Paulo quando, em meados dos anos 1950, icônicas passagens – dentre as quais a Galeria do Rock e a Metrópole – moldaram a imagem de uma cidade aberta.

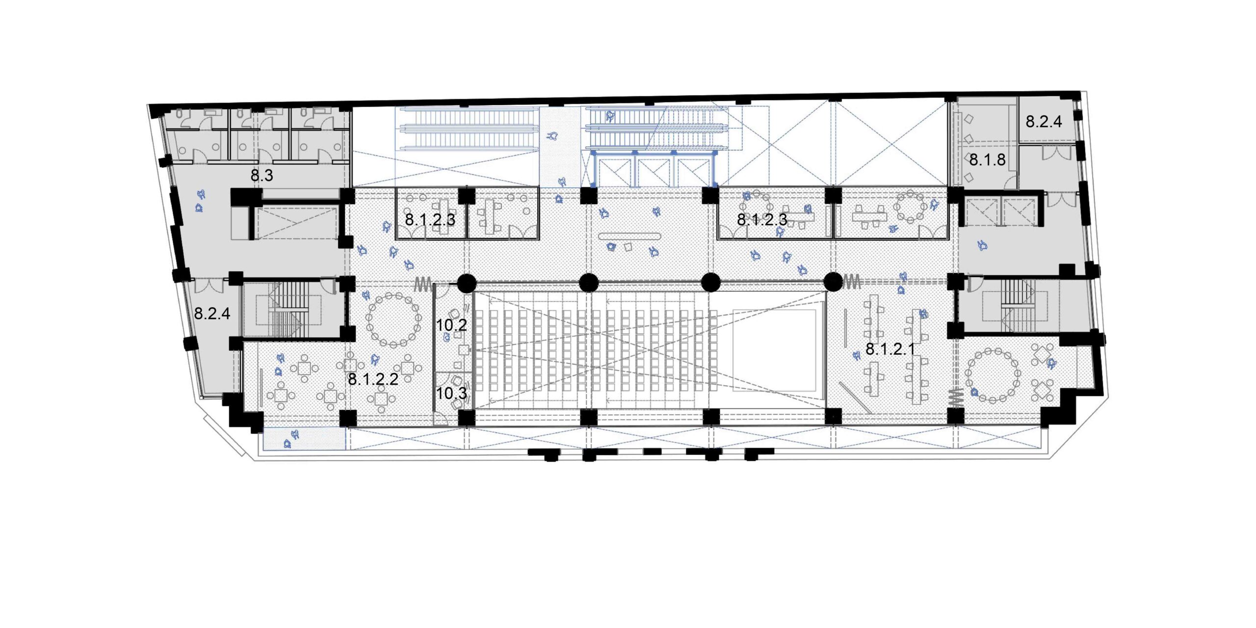
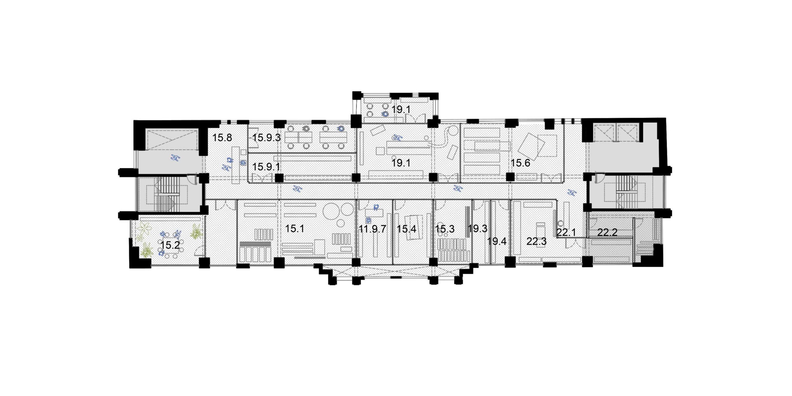
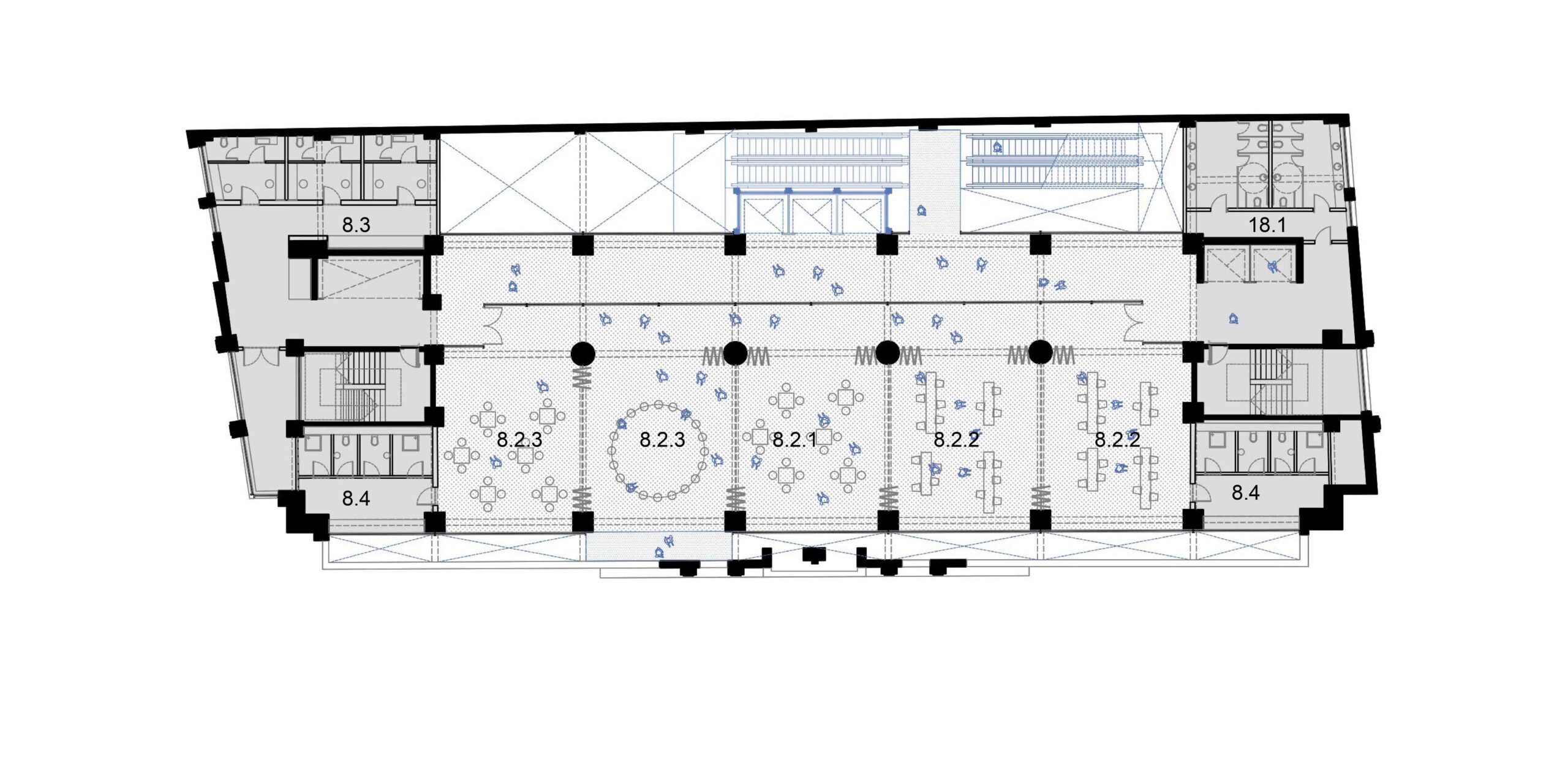
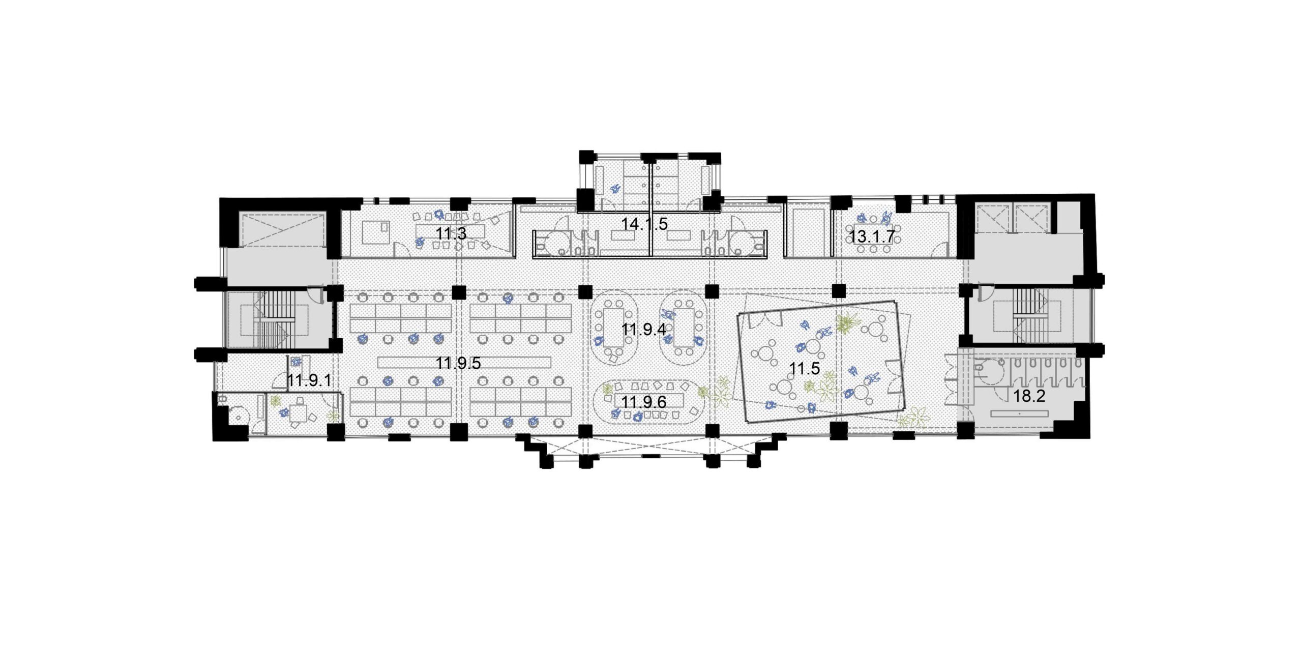
Assim, uma continuidade urbana rege a organização espacial do programa a partir de duas grandes praças sobrepostas e articuladas. Entre elas, resguardam-se blocos de pavimentos com usos de acesso público controlado, de natureza administrativa ou técnica. O térreo se abre como a primeira dessas praças, então duplicado ao incorporar o que antes era subsolo, recurso comum das galerias paulistanas. É um lugar depermanência prolongada e cativante. A segunda praça, na cota do recuo do edifício, abriga o Bar-jardim(Comedoria), mirante voltado ao Teatro Municipal. Entre as duas praças está o núcleo audiovisual (Auditório, Centro de Experimentação) e Biblioteca. Acima da segunda praça estão o núcleo dos cursos (Centro de Pesquisa e Formação) e o núcleo administrativo. A gradação de público se dá conforme se ascende entre esses núcleos, seja por elevador, seja por escada-rolante que conecta o térreo duplicado ao Bar-jardim.

A preservação da arquitetura do edifício exige uma postura crítica em que estrutura e imagem são valorizadas segundo operações complementares. As lajes dos pavimentos correspondentes ao intervalo entre a primeira e a segunda praça, são recuadas até o alinhamento da torre. Com isso, a fachada histórica do embasamento é destacada, reforçando o seu sentido de marco cultural; ao ser vista então pela primeira vez, de um só golpe, em seu reverso, praticamente solta, sublinha a coexistência de múltiplas temporalidades. Por outro, no limite oposto do lote, o que era fundo de um edifício comercial torna-se protagonista como animado átrio avarandado, com iluminação natural por onde atravessam as escadas-rolantes. As demolições seguem um princípio técnico-poético, deixando à mostra a passagem do tempo, com suas marcas e imperfeições. Duas lajes são suprimidas para ampliar o pé-direito dos pavimentos do Bar-jardim e do Auditório. Este não se configura numa caixa-preta, com seus limites flexíveis, pode abrigar desde aulas e palestras a apresentações teatrais que contagiem os percursos verticais e horizontais do edifício. De modo geral, os espaços internos, outrora fechados, pouco ventilados e obstruídos, se tornam grandes planos com ampla iluminação e ventilação natural, garantindo um desempenho energético coerente e em consonância com as expectativas contemporâneas de um ambiente sustentável. Os jardins, além de um caráter lúdico, formam áreas de retenção das águas pluviais.

Estima-se que um milhão de pessoas atravessem o Viaduto do Chá todos os dias, em percursos ditados pelo tempo maquinal do trabalho, rumo à República, ao Anhangabaú, Sé e 9 de Julho. O edifício João Brícola recuperado pode significar um potente lugar de desaceleração – mero abrigo durante uma tarde chuvosa, pausa para o café, palco de prolongadas permanências ou imersões em atividades culturais e de lazer. As passagens, notou Benjamin, eram uma rua afeita a desejos, mediante a sucessão de situações por elas estimuladas. O Sesc-Galeria se apresenta com sentido similar, uma estrutura essencialmente pública e urbana capaz de amparar os imprevisíveis acontecimentos que podem reinventar seus espaços todos os dias.